91抖阴污在线观看,91抖阴视频在线直播,91抖阴视频下载,91成人版抖阴APP下载

    虹橋萬科中心
    5.30元/m2/天起

    大虹橋

    閔 行 -申長路988弄

    2號線-虹橋火車站、10號線-虹橋火車站、17號線-虹橋火車站

    房源專屬顧問為您服務

    江帥軍Evan

    13052210023

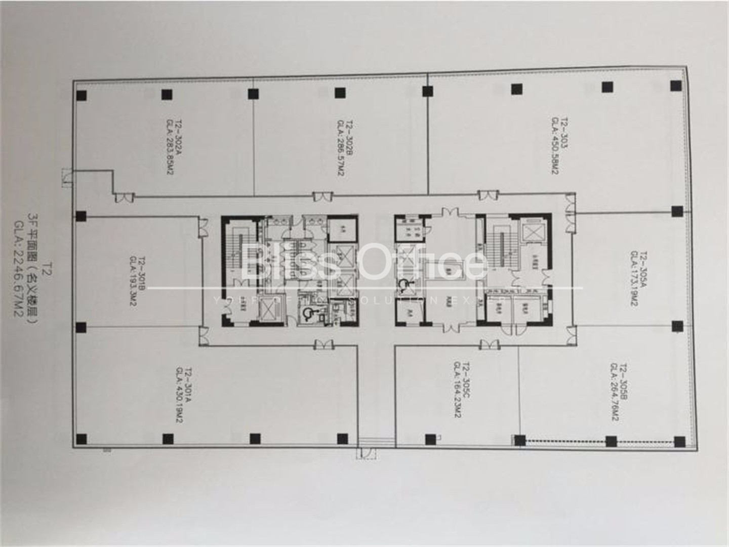
    在租戶型

    In Tenant Type

    • 照 片麵 積單 價總 價詳情

    樓盤照片

    Building photos



    大廈簡介

    Building introduction

    • 類型

      寫字樓

    • 單層麵積

      2200平

    • 總樓層

      9層

    • 得房率

      70%

    • 竣工年月

      2016年3月

    • 物業公司

      萬科物業

    • 物業費

      33元/平米•月

    • 層高

      淨高3.0米

    • 空調類型

      VAV中央空調係統

    • 電梯

      4部客梯,1部貨梯

    • 車位

      地下1012個

    • 是否涉外

    虹橋萬科中心,是萬科集團在上海的首個商業綜合體項目,更是集超甲級現代商務辦公樓、商業、文娛、教育為一體的生態能量辦公樂園。


    虹橋萬科中心地處虹橋商務區核心,接壤虹橋交通樞紐,聯動長三角城市群。總占地麵積約32,000m2,總建築麵積約197,000m2,其中辦公建築麵積約98,500m2,商業建築麵積約34,000m2其中包括兩家聯合辦公產品:wzworkp2。


    虹橋萬科中心由七棟鑽石型建築及圍合式下沉廣場組成,建築外觀如寶石般通透獨特,花園般的景觀設計別具一格。全項目獲LEED GOLD及國家綠色三星認證,國際設計團隊傾心打造高品質綠色商務空間。創新的能量補給型商業業態和以智慧為核心的萬科新型物業服務,專為虹橋商務區精英量身定製。


    虹橋萬科中心以“著眼未來,不斷創新”為目標,致力於為顧客同時實現高端商務服務與精致生活享受,打造未來辦公典範。
    虹橋萬科中心由七棟建築與一個下沉式廣場組成,總占地麵積約3.2萬平方米,其中寫字樓建築麵積約9.3萬平方米,商業建築麵積約3萬平方米。七棟建築如鑽石般通透獨特,花園般的景觀設計別具一格。值得一提的是,全項目獲LEED GOLD及國家綠色三星認證,這標誌著虹橋萬科中心高品質的綠色商務空間。
     

    虹橋萬科中心

    虹橋萬科中心每棟辦公樓均擁有符合私人定製高端辦公的硬件要求,無柱式設計實現高得房率,盡享開闊視野;3米的層高、架空地板、可拆卸樓板輕鬆實現跨層辦公,可以讓業主靈活設計空間。全石材裝飾的9米挑高大堂,行政電梯及行政衛生間,為大型及跨國企業提供國際A級私人定製的辦公場所。

    除辦公空間的私人定製外,虹橋萬科中心的商業部分也獨具匠心,為白領一族量身定製補充能量的特色業態。引入滿足白領味蕾需要的各國餐飲美食,符合白領需求的小資休閑娛樂商戶,工作閑餘時光的文化概念店以及便捷舒適的生活服務等。這精心的布局,將為在此辦公的白領人群,帶來前所未有的快樂辦公體驗。

    在商業地產蓬勃發展的今天,許多做商業地產的開發商都在強調O2O的線上與線下的結合。唯獨虹橋萬科中心,通過雲服務中心,將商業地產帶向了O2M的時代。

    公共交通

    Public transit

    虹橋萬科中心

    閔 行 大虹橋申長路988弄

    大廈圖片

    直接安排看房Bliss Office

    How To Commissin Bliss Office

    網站地圖