91抖阴污在线观看,91抖阴视频在线直播,91抖阴视频下载,91成人版抖阴APP下载

    城利大廈
    7.00元/m2/天起

    南京西路

    靜 安-江寧路219號

    2號線-南京西路、12號線-南京西路、13號線-南京西路

    房源專屬顧問為您服務

    楊亦晗Cassie

    13167276699

    在租戶型

    In Tenant Type

    • 照 片麵 積單 價總 價詳情

    樓盤照片

    Building photos



    大廈簡介

    Building introduction

    • 類型

      寫字樓

    • 單層麵積

      1090平

    • 總樓層

      25層

    • 得房率

      68%

    • 竣工年月

      2021年

    • 物業公司

      仲量聯行

    • 物業費

      30元/平/月

    • 層高

      淨高3.5米

    • 空調類型

      VAV中央空調

    • 電梯

      客梯6部,貨梯2部

    • 車位

      1800元/月,臨時15元

    • 是否涉外

    城利大廈坐落於靜安南京西路商圈腹地,力邀國際團隊傾力打造,將為您呈獻一座中高端Lifestyle綜合體。項目包括:高標準寫字樓樓宇、Lifestyle主題輕奢商業中心及齊備的商務生活一體化配套設施(包括人臉識別門禁係統、白領食堂、大堂咖啡吧、健身房等)。


    (香樟花園)——改造後的城利大廈符合上海5A級高檔寫字樓的級別,總建築高度為108.12米,1至5層為商鋪區,6-24層為辦公樓區域,25層為俱樂部會所。同時結合靜安區CBD商圈,城利大廈寫字樓一躍成為上海甲級辦公樓標準。


    城利大廈項目坐落上海市靜安區南京西路板塊的江寧路與北京西路路口,周邊設施成熟,消費人群穩定。誠利大廈於2021年竣工落成,毗鄰地鐵2/12/13  號線。


    開  發  商:上海城利房地產有限公司

    建築麵積:20120㎡

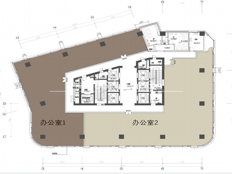
    分割麵積:505㎡-1090㎡(大小麵積可自由組合)

    交付標準:標準交付

    空調係統:VAV中央空調,電子空氣過濾係統去除PM2.5顆粒

    空調開放:周一到周五8:30-18:00,周六8:30-13:00

    車位配置:137個

    交        通:地鐵2/12/13號線南京西路站步行6分鍾


    出租麵積:辦公樓可出租總麵積約20120㎡,單層麵積1090㎡,最小租賃麵積505㎡,505㎡~1090㎡麵積可自由組合,滿足不同需求的企業

    租金報價:7.5~8.5元/天/平方米,業主對於優質、整層客戶將給予較大談判空間。

    公共交通

    Public transit

    城利大廈

    靜 安南京西路江寧路219號

    大廈圖片

    直接安排看房Bliss Office

    How To Commissin Bliss Office

    網站地圖