陸家嘴
浦 東-陸家嘴環路1233號
2號線-陸家嘴、14號線-陸家嘴
In Tenant Type
Building photos
Building introduction
寫字樓
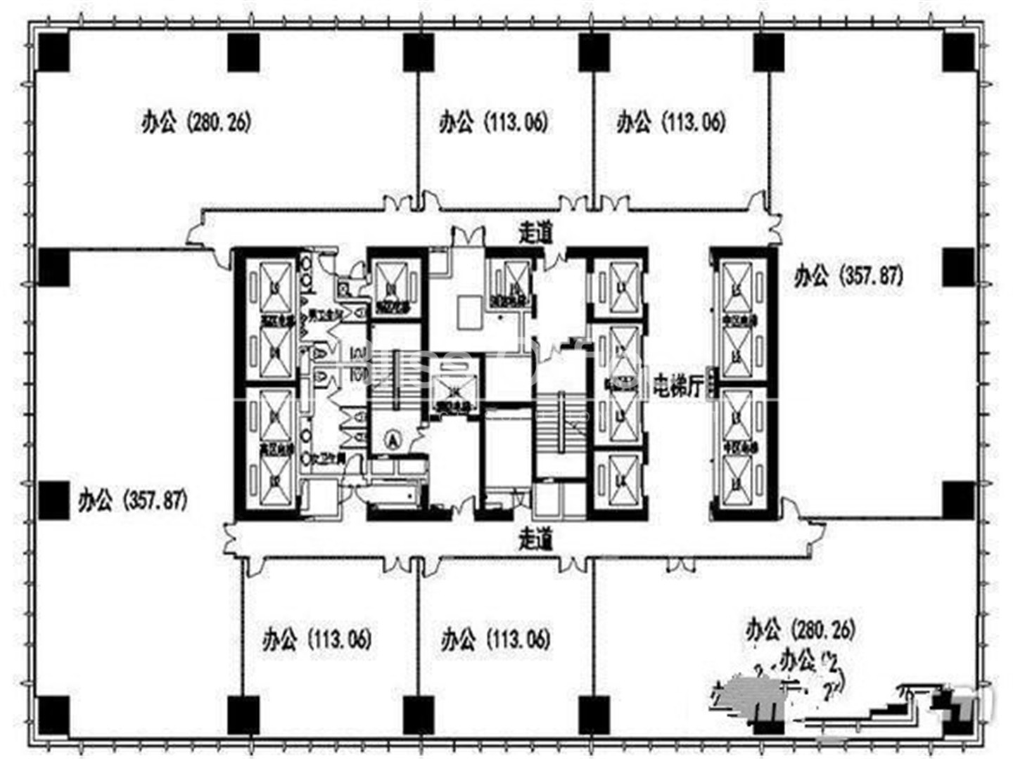
2390平
37層
70%
2005年
世邦魏理仕
31.6元
2.8米
VAV中央空調係統
客梯14部,貨梯2部
地下340個
是
匯亞大廈地上33層、地下4層,標準層麵積2390平方米,層高2.8米。
上海匯亞大廈位於陸家嘴核心陸家嘴環路1233號,距離2號線陸家嘴站1號口大概步行5分鍾左右。旁邊是平安金融大廈,上海銀行大廈,和富士康大廈。
但是上海匯亞大廈是很低調的,低調到你可能去了一趟陸家嘴但是你可能都察覺不到陸家嘴還有這麽一棟樓叫匯亞大廈。但是匯亞大廈還是憑著其過硬的基礎設施贏得了眾多外資租客的入住,比如說恨得外資銀行。
上海匯亞大廈目前隻租不售,開發商對外招商過程中有對租客的資質審核條件,匯亞大廈大業主對外租金報價12-13元/平/天,物業費是42元/平/月。主力戶型都是300方左右,偶爾也有150方的小戶型出來,房源特別少,一出來就會被定掉。
Public transit
浦 東陸家嘴陸家嘴環路1233號
How To Commissin Bliss Office